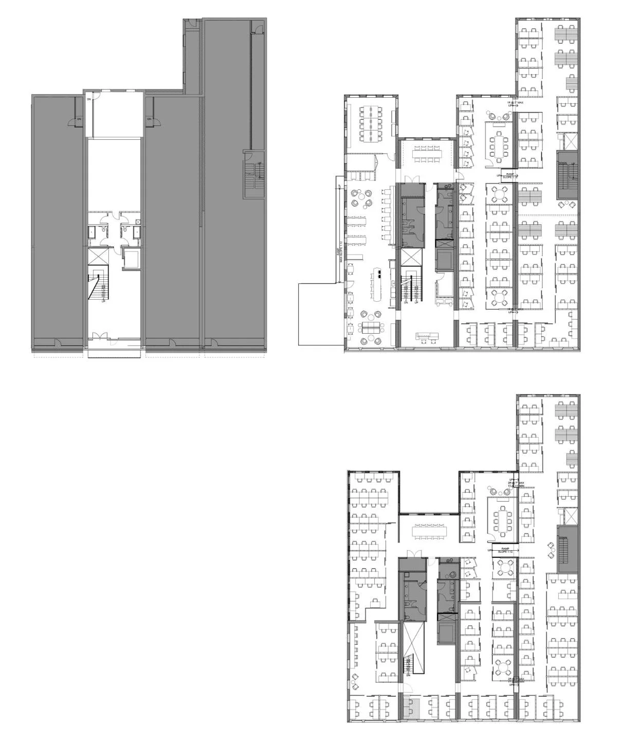
Gather Arts District | Richmond, VA

Situated squarely in Richmond, Virginia’s Arts District, Gather’s fifth location converts four historic buildings into one 21,000-SF co-working office reflecting the neighborhood’s enterprising energy. The space aims to complement the city’s influential cultural hub while reinforcing Gather’s mission to celebrate entrepreneurship and position small businesses for success.

Size

21,000 SF

Scope

Design and Documentation

Construction Administration

Role

Project Designer

Recognition

AIA Richmond Chapter Awards of Excellence, Best Interiors, 2020

Images © Hickok Cole

Previous
Previous

NDP Agency

Next
Next

Pfizer